设计100%用心
施工100%放心
服务100%贴心
0754-88722527
99886527
首页
关于我们
案例展示
家装案例
工装案例
全景案例
设计团队
工程优势
新闻资讯
企业动态
行业资讯
风水文化
装修常识
常见问题
联系我们
加入我们
工装案例
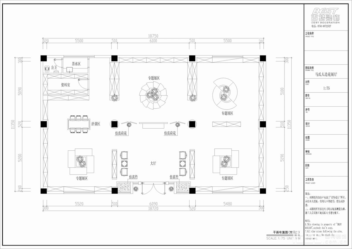
贵屿马氏人造花
作者:admin
时间:2014年12月05日
人气:
-
贵屿马氏人造花
在线咨询
预约设计
官方微信
关注百特装饰公众号
咨询热线
0754-88722527
电话咨询
QQ咨询
预约设计
关于我们